DB13
2022
re-layout di appartamento privato
Milano, Lombardia, Italia

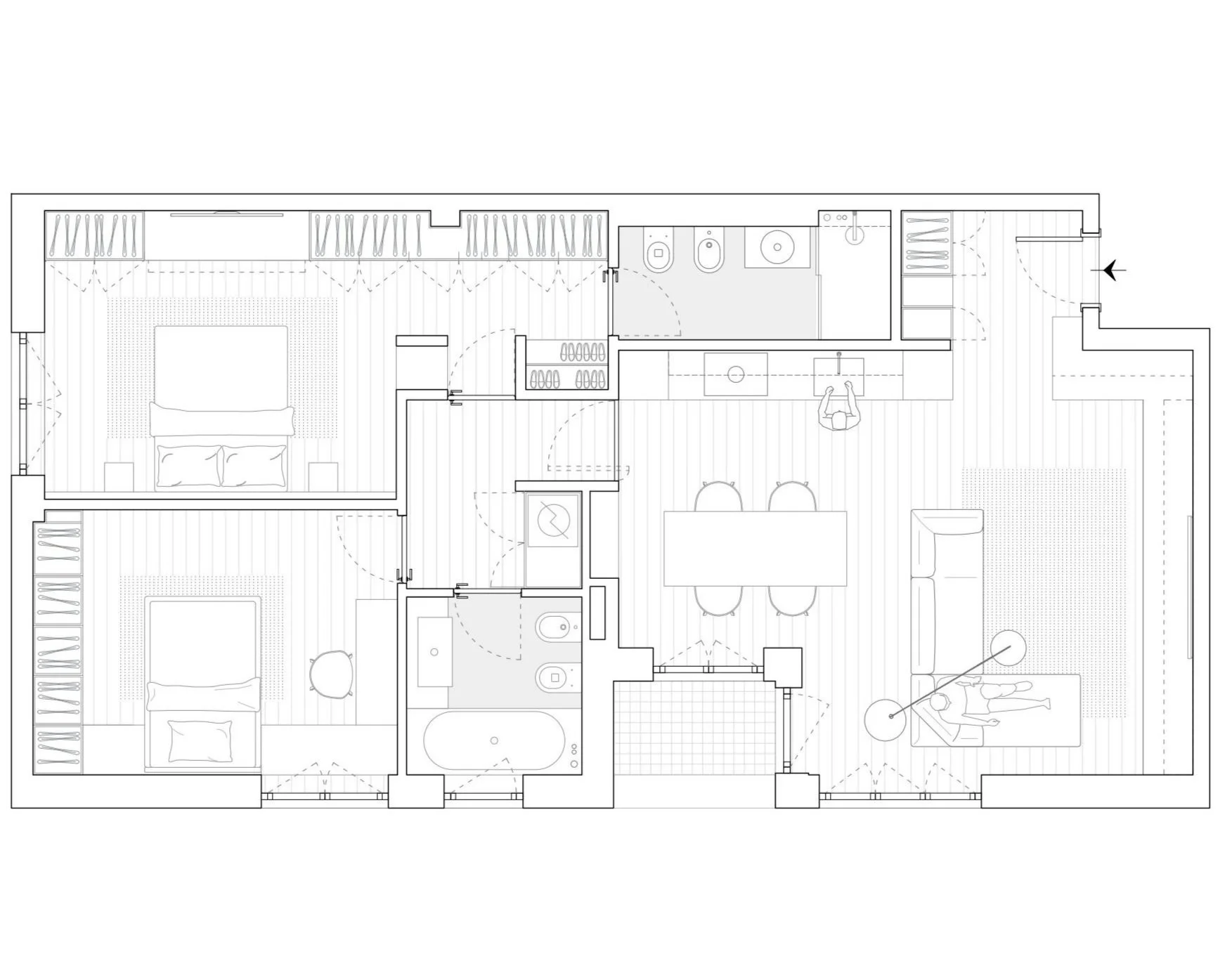
stato di fatto

stato di progetto
















cliente: privato / mq: 103
2022
re-layout di appartamento privato
Milano, Lombardia, Italia
stato di fatto
stato di progetto
cliente: privato / mq: 103